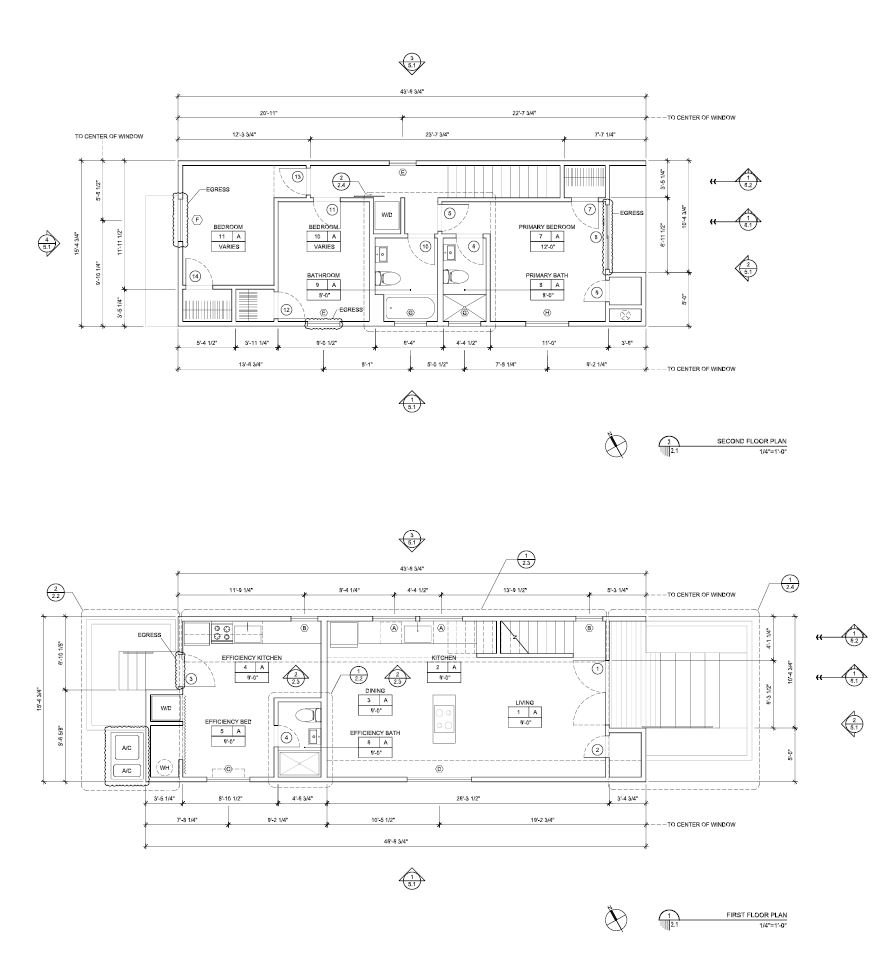
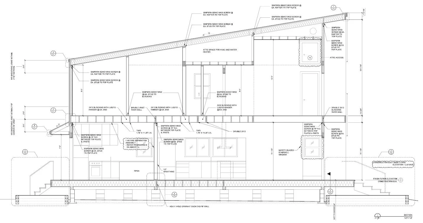
REose revisited
Reose was originally developed in the aftermath of Hurricane Katrina as part of a design competition focused on affordable, replicable housing for New Orleans’ vast inventory of vacant lots. Conceived as a flexible prototype for a typical 30’ x 100’ site, the project explored how contemporary housing could retain key spatial traditions of the local vernacular—front porches, narrow side yards, generous rear yards, and layered outdoor living—while incorporating emerging strategies for environmental performance and resilience.
Years later, Reose has been revisited and adapted for real deployment in Central City through a partnership with CNTRD, a New Orleans–based DBE developer focused on attainable homeownership. This new iteration tightens the original scheme, clarifying its massing, construction logic, and program to support repeatable infill development on constrained urban sites. Reose Revisited represents the maturation of a speculative prototype into a buildable, replicable housing model—one that balances affordability, resilience, and contextual sensitivity while remaining adaptable for future sites. The project reflects bild’s ongoing exploration design research that bridges experimentation and real-world application.
